70
$6,250,000 Sale
Listed 1 day
30 Fiesta Way
· 7
· 6
· 3
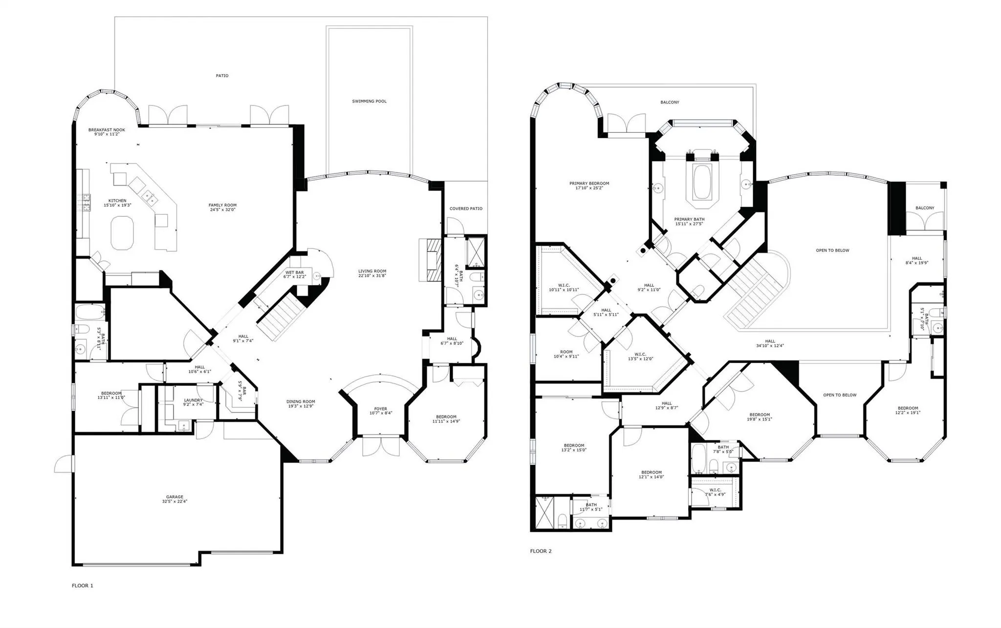
· 5510
Key Facts
Key facts for 30 Fiesta Way
Property Type
House, Mediterranean,Two Story
Parking
Attached,Circular Driveway,Driveway,Garage,Paver Block 3 garage, Attached,CircularDriveway,Driveway,Garage,PaverBlock
MLS #
F10527627
Size
5510 sqft
Basement
-
Listed on
-
Lot size
-
Tax
$70,484 /yr
Days on Market
-
Year Built
2000
Maintenance Fee
-
Description
Luxury and income potential converge at this 7BD/6BA Mediterranean estate in exclusive the Nurmi Isles. Set on an 85-ft deepwater lot with no fixed bridges and direct ocean access, this 5,500+ sq ft home offers soaring ceilings, floor-to-ceiling windows, a chef’s kitchen with gas cooking, and seamle...ss indoor-outdoor flow. The flexible layout includes a downstairs bedroom + office, upstairs primary suite with balcony, spa bath, and gym, plus a private guest wing. Outdoors: a heated infinity pool, spa, covered lounge, fire pit, and fully equipped dock. Operated as “Fiesta Key” by Latitude Key, it's a top-performing, fully furnished luxury short-term rental. Minutes to Las Olas, beaches, dining, and shopping. Ideal as a residence or high-yield investment., Directions:From las olas blvd turn North onto Fiesta Dr. home will be on the south side of the street.
Similar Properties (No results)
Courtesy of: Latitude Key Real Estate

Copyright 2025 BeachesMLS, Inc.

To submit a request for a takedown notice per the Digital Millennium Copyright Act (the "DMCA") for any listing please see these guidelines and follow the instructions provided.